Descriere
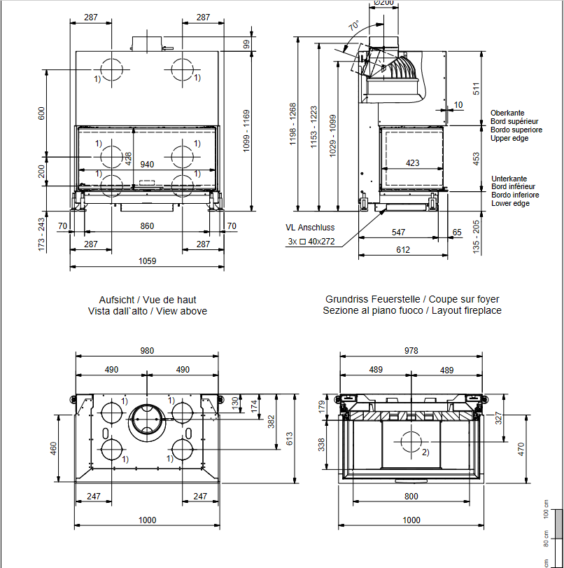
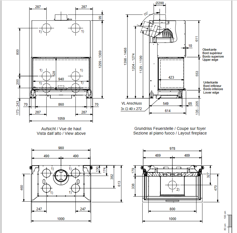
Focarul are 2 variante de inaltimi ale usilor 45 si 55 cm
Preturi 8794/9484 €
Noul focar Ruegg 45/55x100x46 R III aduce romantismul focului în interiorul celor patru pereți și vă surprinde cu detalii tehnice rafinate.
Fie că are una, două sau trei părți, Ruegg Flex-line oferă tehnologie de ultimă oră și o gamă largă de produse cu design ultrasubțire.
Thermobrikk®️ este primul înveliș pentru focar de culoare neagră, care se ridică la înălțimea promisiunilor sale. Își păstrează culoarea închisă chiar și după numeroase arderi și, prin eleganța sa atemporală, se adaptează în mod strălucit cerințelor estetice moderne.
În plus, Thermobrikk®️ are proprietăți fizice remarcabile care se reflectă în durabilitate, soliditate și influențe pozitive asupra procesului de ardere. Unitățile de încălzire echipate cu Thermobrikk®️ stabilesc noi repere în ceea ce privește curățenia și eficiența – cu atât mai mult având în vedere limitele ce vor deveni și mai stricte în viitor.
Avantaje focar Ruegg 45/55x100x46 R III cu trei fete, dintr-o privire:
- Ușor de utilizat și funcțional: geamurile excepțional de netede rămân curate mai mult timp și pot fi pur și simplu deblocate pentru curățare dintr-o singura miscare, rapid și ușor
- Durabilitate și fiabilitate la calitate elvețiană dovedită: dacă este necesară o reparație, toate piesele mobile pot fi înlocuite fără deteriorarea carterului
- Flăcările pâlpâitoare se observa foarte bine datorita designului subtil și suplu Ruegg cu multe imbunatatiri ale detaliilor
- Arhitectura unui focar Ruegg 45/55x100x46 R III oferă o mare libertate în design-ul personalizat al șemineului dvs
- Un sistem de încălzire certificat și dezvoltat pentru case eficiente din punct de vedere energetic
- Excelent raport calitate-preț
- Nivel ridicat de eficiență și emisii mai mici decât media
- Respectă toate reglementările europene relevante în materie de energie și mediu
Accesoriile de montaj (rame exterioare) si optiunile de ventilatie se calculeaza separat, de la caz la caz.









